Teren de vanzare in Cluj-Napoca, Dambul Rotund ID 6802
Dotari imobil
Descriere imobil
Oferim spre vanzare teren intravilan in suprafata de 430 mp cu autorizatie de constructie casa individuala, situat in Cluj-Napoca, in cartierul Dambul Rotund, fiind un cartier nou-dezvoltat; in zona strazii Lombului.
Pozitionarea ofera o priveliste frumoasa asupra zonei, dar si asupra orasului.
Locatia este ideala pentru familii deoarece este o zona rezidentiala de case si vile, in care linistea si privelistea isi pun amprenta.
Terenul este autorizat pentru construire de casa individuala P+E
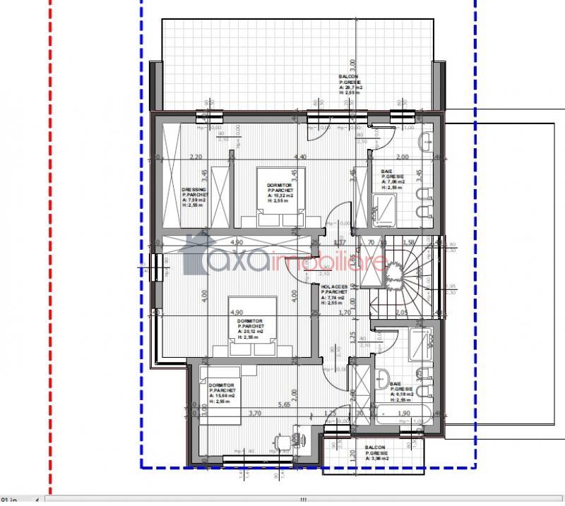
Teren autorizat pentru construire casa cu o desfasurare si compartimentare:
PARTER:- 1 living 20,99 mp
- 1 bucatarie cu zona de luat masa 31,84 mp
- 1 hol 12,98 mp
- 1 baie 6,18 mp
- 1 birou 11,60 mp
- 1 zona acces trepte etaj 3,19 mp
- 1 terasa generoasa acoperita 29,10 mp
- CT 12,94 mp
- 1 garaj 24,38 mp
ETAJ:- 1 dormitor 15,66 mp + 1 balcon 3,96 mp
- 1 dormitor 20,12 mp
- 1 dormitor matrimonial 15,32 mp ( acesta detine baie proprie 7,06 mp , dressing 7,59 mp, balcon 26,70 mp )
- 1 hol 7,74 mp
- 1 baie 6,18 mp (care deserveste 2 dormitoare )
- 1 zona acces trepte 3,19 mp
Terenul dispune de toate utilitatile:
-apa
-canalizare
-gaze naturale
-electricitate
-drum asfaltat
-iluminat stradal
-salubritate
Opinia agentului
" Locatia este ideala pentru familii deoarece este o zona rezidentiala de case si vile, in care linistea si privelistea isi pun amprenta. "



