Casa 5 camere de vanzare in Floresti ID 5507
Dotari imobil
Beton
Detalii imobil
ETAJ / AL DOILEA NIVEL: 3 dormitoare, 2 bai, hol, 1 balcon.
Descriere imobil
De vanzare imobil cu 5 camere, partea din mijloc al unui triplex, situat in Floresti, pe strada Tautiului, intr-o locatie linistita, cu acces usor la centura.
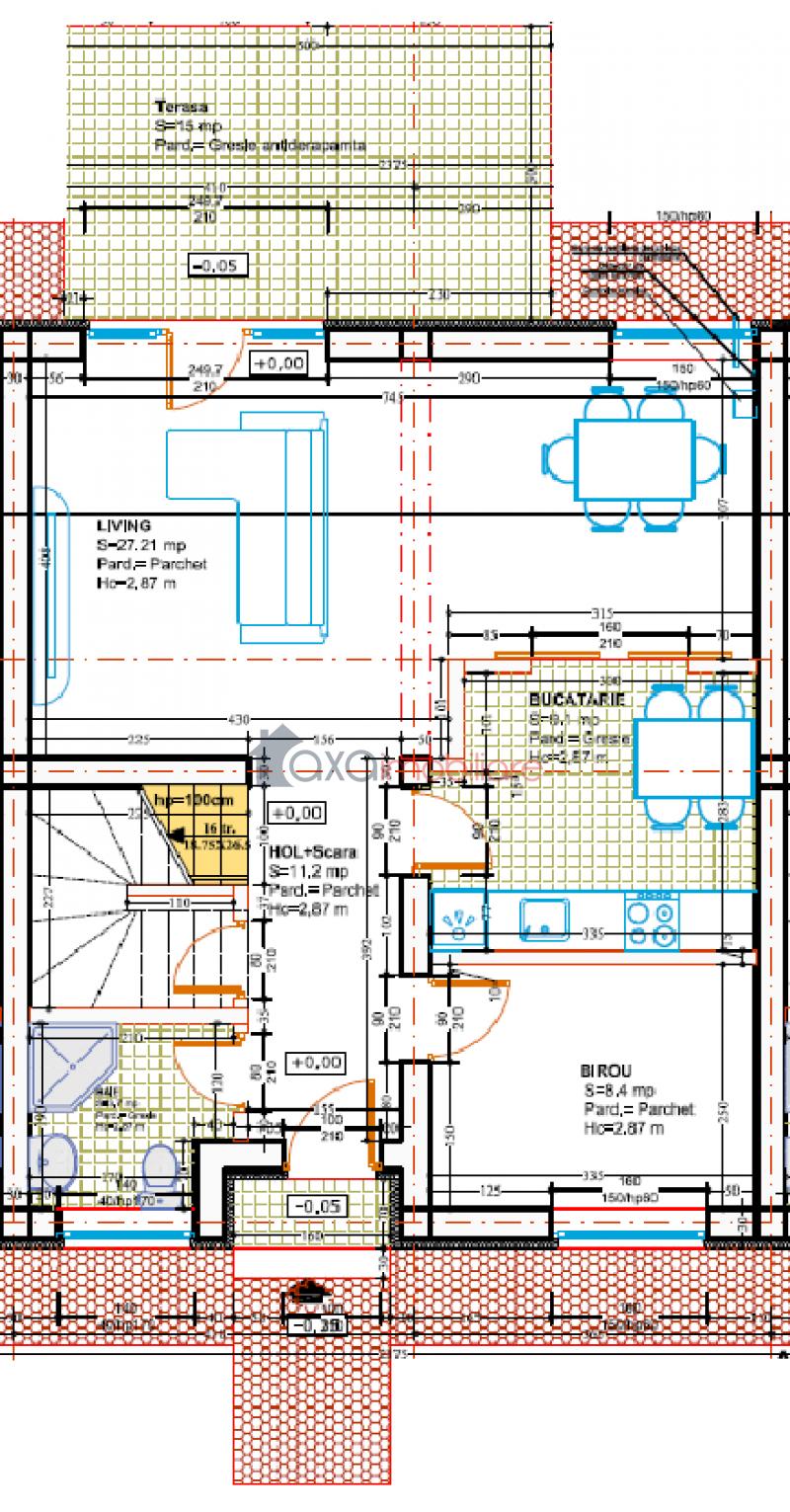
Suprafata utila este de 120 mp, dispusa pe regim de inaltime P+E.
La primul nivel se afla 1 living cu dining, 1 bucatarie, 1 birou, 1 hol, 1 baie, casa scarii, 1 terasa.
La cel de-al doilea nivel se afla 1 dormitor matrimonial cu baie proprie, 1 dormitor cu dressing, 1 dormitor simplu cu balcon, 1 hol si 1 baie comuna.
Se vinde la stadiul de semifinisat.
Dispune de centrala termica, incalzire in pardoseala, geamuri termopan, usa la intrare.
Termen de finalizare: Aprilie 2020.
Suprafata terenului este de 160 mp, imprejmuit.
Opinia agentului
" Recomand aceasta oferta clientilor mei care doresc sa locuiasca intr-un imobil nou, intr-o locatie linistita, dar si celor care pun accent pe compartimentare si confort. "



