Casa 5 camere de vanzare in Cluj-Napoca, Andrei Muresanu ID 5474
Dotari imobil
Beton
Detalii imobil
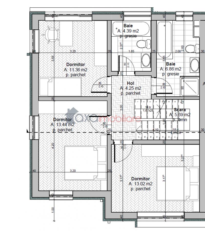
ETAJ / AL DOILEA NIVEL: 3 dormitoare, hol, 2 bai, casa scarii.
MANSARDA / AL TREILEA NIVEL: camera hobby, 1 baie, scara.
Descriere imobil
O locuinta cocheta, o casa spatioasa si frumos compartimentata, situata in Cluj-Napoca, in cartierul Andrei Muresanu, intr-o locatie linistita ideala pentru familii.
Vecinatati / Facilitati: cartierele Gheorgheni, Borhanci, Buna Ziua, Becas, Piata Cipariu, zona centrala.
Regimul de inaltime al casei este P+E+M; imobilul avand o suprafata utila de 150 mp.
Compartimentare si suprafete:
PARTER / PRIMUL NIVEL: 1 living (25.62 mp), 2 holuri (6.92 mp si 2.29 mp), 1 bucatarie (13.78 mp), 1 camara (1.32 mp), 1 baie (2.61 mp), 1 terasa.
ETAJ / AL DOILEA NIVEL: 3 dormitoare (13.44 mp, 13.02 mp, 11.36 mp), hol (4.25 mp), 2 bai (4.39 mp si 6.86 mp), casa scarii (5.69 mp).
MANSARDA / AL TREILEA NIVEL: camera hobby (22.58 mp), 1 baie (7.47 mp), scara (5.69 mp).
Se vinde la stadiul de semifinisat; dispune de centrala termica, geamuri termopan, usa la intrare.
Suprafata terenului este de 514 mp, imprejmuit.
Opinia agentului
" Recomand aceasta casa clientilor mei care pun accent pe imobil nou, confort si calitate. De asemenea, compartimentarea este bine gandita, iar locatia este linistita, in imediata vecinatate a facilitatilor. "



