Casa 4 camere de vanzare in Cluj-Napoca, Europa ID 5918
Dotari imobil
Beton
Detalii imobil
ETAJ / AL DOILEA NIVEL: 3 dormitoare, 1 hol, 1 baie, 1 terasa acoperita cu sticla.
Pod cu scara rabatabila.
Descriere imobil
O locuinta superba, ultrafinisata si foarte cocheta, dispusa pe regim de inaltime P+E, situata in Cluj-Napoca, in cartierul Europa, in zona strazii Luminii; zona de case, ideala pentru familii.
Suprafata utila este de 120 mp + 2 terase, iar suprafata terenului este de 216 mp.
Compartimentare
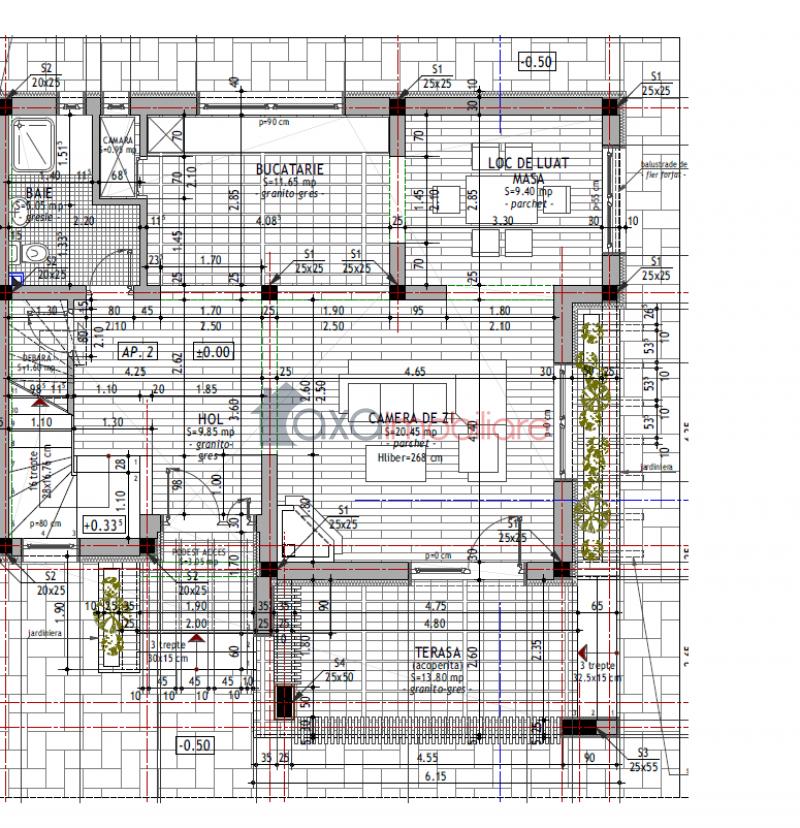
PARTER / PRIMUL NIVEL: 1 living, 1 dining, 1 bucatarie, 1 camara, 1 baie, hol, loc de depozitare sub scara, 1 terasa acoperita si umbrita de parasolar electric.
ETAJ / AL DOILEA NIVEL: 3 dormitoare, 1 hol, 1 baie, 1 terasa acoperita cu sticla.
Detalii despre constructie
-Constructie din caramida (30 cm), izolata termic.
-Acoperis din tigla.
-Pod cu scara rabatabila.
-Incalzire cu centrala termica Buderus (la parter este incalzire in pardoseala, iar la etaj sunt calorifere).
-Geamuri termopan cu 3 sticle.
-Scara si balustrada din lemn de stejar masiv.
-Parchet stratificat lemn masiv in toata casa.
-Usi la comanda de calitate superioara.
-Semineu.
-Terasele sunt pavate cu gresie de exterior.
-Sistem de supraveghere video si antiefractie cu 5 camere video; cu senzori in fiecare camera (abonament la firma de securitate).
-Ferestre cu rulouri de aluminiu electrice cu telecomanda import Germania si plase de tantari.
-Parcare in curtea din spatele casei si fantana cu 2 pompe pentru furtun si irigatii.
-Curtea este amenajata cu copaci, gazon, gard viu din brazi, barbeque si dispune de sistem de irigatie automatizat ce functioneaza cu apa din fantana.
-Parcarea se afla in spatele casei cu intrare din strada pe poarta automatizata cu telecomanda.
Se vinde nemobilata, dar exista posibilitate de cumparare complet mobilata si utilata, la intelegerea partilor.
Opinia agentului
" O locuinta superba, ultrafinisata si realizata doar din materiale de calitate superioara. O casa deosebita prin amenajare, ce pune accent atat pe exteriorul ei, cat si pe interior. Curtea este superba, frumos amenajata cu plante, verdeata, pomi. Recomand aceasta locuinta pentru o familie. "



