Casa 4 camere de vanzare in Cluj-Napoca, Bulgaria ID 5209
Dotari imobil
Beton
Detalii imobil
ETAJ / AL DOILEA NIVEL: 1 dormitor matrimonial (cu baie proprie), 2 dormitoare, 1 baie, hol, 1 balcon.
Descriere imobil
Propunem spre vanzare duplex semifinisat, constructie noua din 2019, situat in Cluj-Napoca, in cartierul Bulgaria, in zona strazii Branului, intr-o locatie linistita. Duplex-ul este situat intr-o curte interioara, iar accesul se realizeaza de pe un drum privat (aproximativ 30 m lungime).
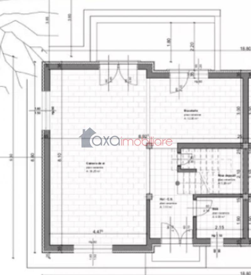
Imobilul are o suprafata utila de 127 mp si este dispus pe regim de inaltime P+E.
La parter este zona de zi: living + loc de luat masa, bucatarie, baie, debara, hol, 1 balcon.
La etaj este zona de odihna: 1 dormitor matrimonial (cu baie proprie), 2 dormitoare, 1 baie, hol, 1 balcon.
Se vinde la stadiul de semifinisat cu sapa autonivelanta, peretii gletuiti si tencuiti, centrala termica, calorifere, geamuri termopan cu 3 sticle, usa la intrare.
Instalatiile sunt trase pe pozitie.
Exteriorul duplex-ului este finisat cu tencuiala decorativa de exterior.
Casa este acoperita cu tigla.
Dispune de curte pavata si de gazon.
Opinia agentului
" Constructie noua din 2019, dispusa pe doua niveluri, frumos compartimentata, situata in cartierul Bulgaria. "



