Casa 4 camere de vanzare in Cluj-Napoca, Borhanci ID 3909
Dotari imobil
Detalii imobil
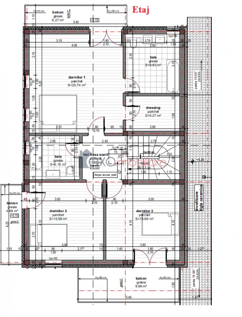
Al doilea nivel: 3 dormitoare, 2 bai, 1 hol, 1 dressing, 3 terase. (Unul din dormitoare dispune de dressing si baie).
Descriere imobil
De vanzare imobil de tip casa, cu 4 camere (3 dormitoare si 1 living), ce dispune de o suprafata utila de 200 mp, situat in Cluj-Napoca, in cartierul Borhanci, pe strada Stefan Ruha.
Locatia este excelenta pentru cei care doresc sa locuiasca intr-o zona linistita si aerisita, nou dezvoltata, departe de zgomot si aglomeratie. Compartimentarea este foarte bine gandita.
Imobilul este dispus pe doua niveluri:
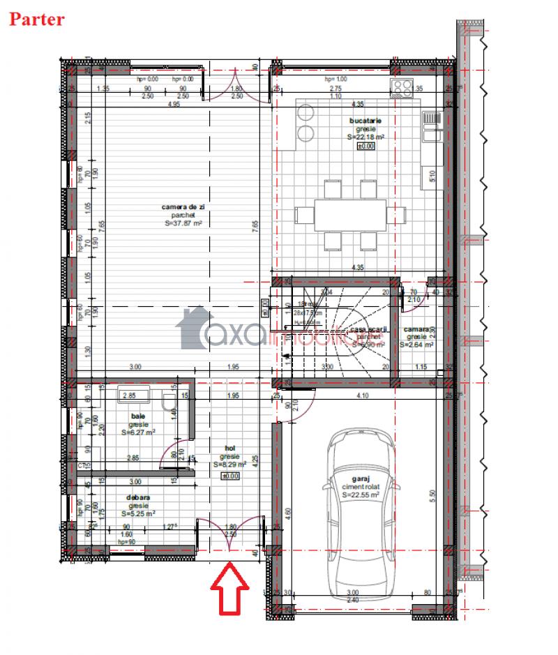
- Primul nivel: 1 hol, 1 camera de zi, 1 bucatarie, 1 debara, 1 baie, 1 camara, 1 garaj.
- Al doilea nivel: 3 dormitoare, 2 bai, 1 hol, 1 dressing, 3 terase. (Unul din dormitoare dispune de dressing si baie). Fiecare dormitor dispune de terasa.
Se vinde la stadiul de semifinisat cu sapa autonivelanta si peretii gletuiti.
Dotari: centrala termica, geamuri termopan.
Alte detalii: parcare, garaj, acces auto, teren 600 mp.
Finalizarea imobilului va fi in Mai-Iunie 2017.
Opinia agentului
"O casa deosebita, dispusa pe doua niveluri, foarte bine compartimentata, situata intr-o locatie linistita, cu spatii verzi in jur."



