Casa 3 camere de vanzare in Cluj-Napoca, Grigorescu ID 6006
Dotari imobil
Beton
Detalii imobil
Etaj / Al doilea nivel: Hol, scara interioara, 1 dormitor, 1 dressing, 1 baie, 1 balcon (6.41 mp).
Mansarda / Al treilea nivel: Hol, scara interioara, 1 dormitor, 1 dressing, 1 baie, 1 balcon (4.04 mp).
Descriere imobil
Exclusivitate !
Propunem spre vanzare casa individuala cocheta dispusa pe 3 niveluri, respectiv P+E+M, avand o suprafata utila de aproximativ 110 mp, situata in Cluj-Napoca, in cartierul Grigorescu, in apropiere de Piata 14 Iulie, intr-o locatie cu acces usor si rapid spre punctele de interes.
Locatia este excelenta pentru familii, fiind o zona ce ofera foarte multe facilitati in imediata vecinatate. In apropiere se afla magazine, supermarket-uri, scoli, gradinite, parcuri, piata, farmacii, banci, statia de autobuz etc.
Compartimentare
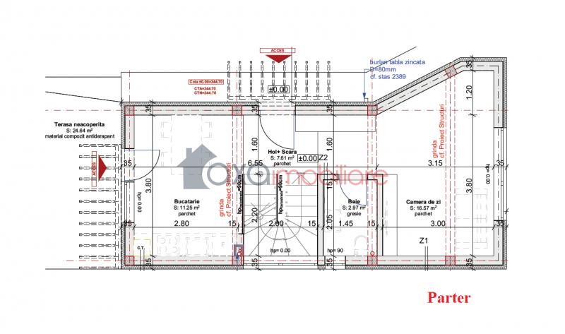
Parter / Primul nivel: Hol, scara interioara, 1 bucatarie (acces din hol + terasa), 1 camera de zi, 1 baie, 1 terasa (25 mp).
Etaj / Al doilea nivel: Hol, scara interioara, 1 dormitor, 1 dressing, 1 baie, 1 balcon (6.41 mp).
Mansarda / Al treilea nivel: Hol, scara interioara, 1 dormitor, 1 dressing, 1 baie, 1 balcon (4.04 mp).
Imobilul se vinde la stadiul de semifinisat cu toate utilitatile trase la pozitie.
Dispune de centrala termica, geamuri termopan.
Suprafata terenului este de aproximativ 300 mp, imprejmuit cu gard.
Termen de finalizare: Decembrie 2021.
Opinia agentului
" O casa unifamiliala cocheta atat prin arhitectura, cat si prin compartimentare. Desi nu dispune de o suprafata utila generoasa, aceasta locuinta este foarte frumos compartimentata, punand accent pe intimitate. Exteriorul casei este unul interesant, combinatia dintre lemn si sticla ofera o nota stilata acestei casute. "



