Apartament 3 camere de vanzare in Cluj-Napoca, Gradini Manastur ID 3138
Dotari imobil
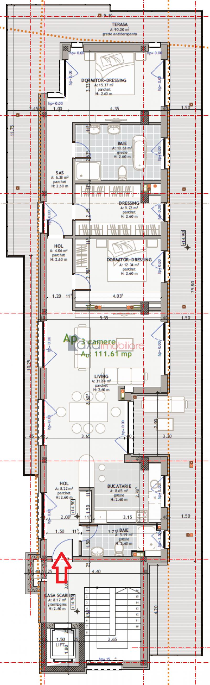
Descriere imobil
Oferim spre vanzare apartament cu 3 camere, suprafata utila de 111.61 mp, confort marit, decomandat, semifinisat, situat in cartierul Gradini Manastur, zona Agronomia.
Apartamentul este pozitionat la etajul 5 al unui imobil nou dipus pe regim de inaltime P+5E. Imobilul dispune de lift.
Compartimentarea este decomandata si foarte bine gandita; apartamentul este compus dintr-un living, 1 bucatarie, 2 dormitoare, 3 dressing-uri, 2 holuri, 2 bai si 1 terasa.
Se vinde la stadiul de semifinisat cu sapa autonivelanta si peretii dati cu lavabil.
Dotari: centrala termica, calorifere, geamuri termopan cu tamplarie din PVC si usa metalica la intrare.
Contra cost se pot achizitiona loc de parcare 4000 euro si/sau 8000 euro garaj.
Finalizarea imobilului va fi in August 2016.
Opinia agentului
''Apartament spatios, semifinisat, potrivit pentru o familie care pune accent pe confort si compartimentare.''



