Apartament 3 camere de vanzare in Cluj-Napoca, Gheorgheni ID 5287
Dotari imobil
Beton
Descriere imobil
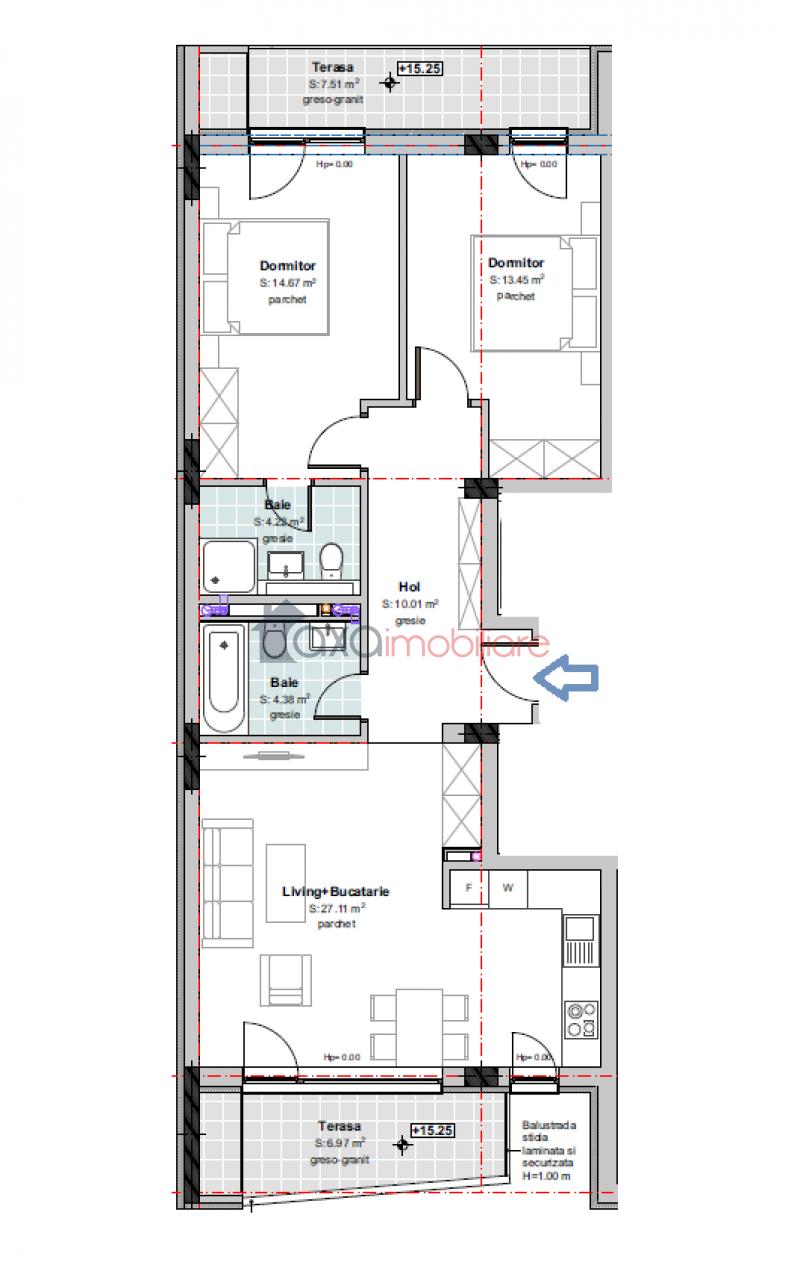
Propunem spre vanzare apartament semifinisat, cu o suprafata utila de 73.83 mp + 2 terase, situat in Cluj-Napoca, in cartierul Gheorgheni, in zona strazii Madach Imre, in apropiere de Piata Cipariu, statia de autobuz, magazine etc.
Vecinatati: cartierele Andrei Muresanu, Buna Ziua, Centru, Borhanci.
Pozitionare: etajul 5 / S+P+5E+ER, intr-un bloc nou dotat cu lift, ce va fi finalizat la sfarsitul anului 2019.
Compartimentare si suprafete: 1 living cu 1 bucatarie de tip open space (27.11 mp), 1 hol (10 mp), 1 baie (4.38 mp), 1 dormitor simplu (13.45 mp), 1 dormitor matrimonial cu baie proprie (suprafata dormitor 14.67 mp, suprafata baie 4.22 mp) + 2 terase de 6.97 mp, respectiv 7.51 mp.
Una din terase are acces din dormitoare, iar cealalta are acces din living si bucatarie.
Se vinde la stadiul de semifinisat.
Dispune de centrala termica, calorifere, geamuri termopan, usa antiefractie.
Optional: pretul unui loc de parcare subteran este de 10.000 Euro.
Opinia agentului
" Un apartament cu o compartimentare moderna si foarte bine organizata, ce dispune de doua terase si de o priveliste frumoasa, situat intr-o locatie ce ofera diverse facilitati in imediata apropiere - la 5 minute de Piata Cipariu. "



