Apartament 3 camere de vanzare in Cluj-Napoca, Buna Ziua ID 2963
Dotari imobil
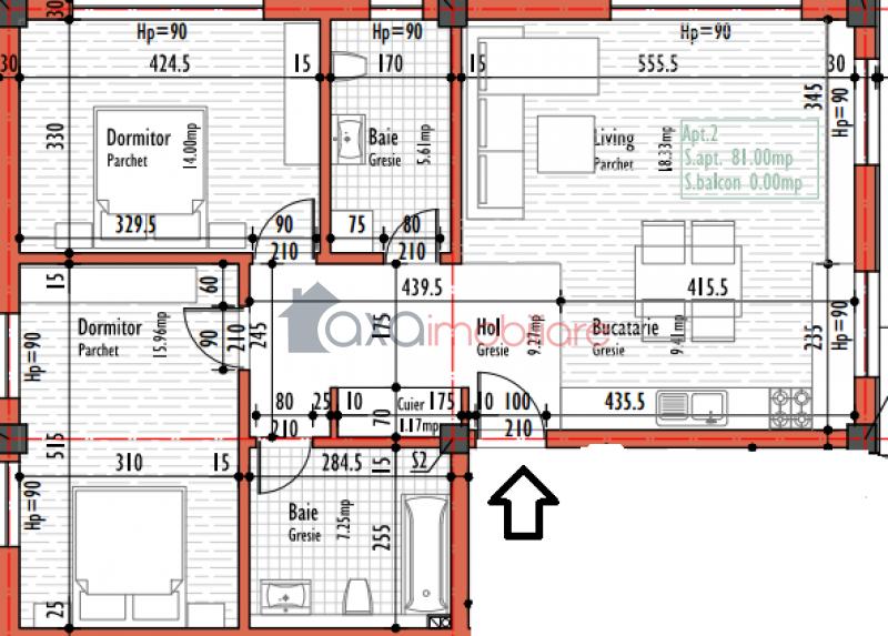
Descriere imobil
Va propunem spre vanzare apartament cu 3 camere, confort marit, cu suprafata utila de 81 mp, situat intr-un imobil nou din cartierul Buna Ziua, in apropiere de Lidl si statia de autobuz.
Apartamentul este pozitionat la parterul unui imobil de tip casa/vila dispus pe regim de inaltime S+P+2E, ce va fi finalizat in 2016.
Compartimentarea este decomandata si gandita astfel: 1 living cu 1 bucatarie de tip open space, 2 dormitoare, 2 bai si 1 hol. La cerere, bucataria se poate inchide.
Se vinde la stadiul de semifinisat cu sapa autonivelanta si peretii gletuiti.
Imobilul are in dotare centrala termica, geamuri termopan si usa metalica.
In pret este inclusa o parcare subterana.
Opinia agentului
''Apartament spatios, semifinisat, care poate fi amenajat dupa bunul plac, potrivit pentru o familie care doreste sa locuiasca intr-o zona linistita, cu spatii verzi.''



