Apartament 2 camere de vanzare in Cluj-Napoca, Manastur ID 3038
Dotari imobil
Descriere imobil
Va propunem spre vanzare apartament cu 2 camere, semifinisat, situat in cartierul Manastur, in zona Kaufland, aproape de statia de autobuz.
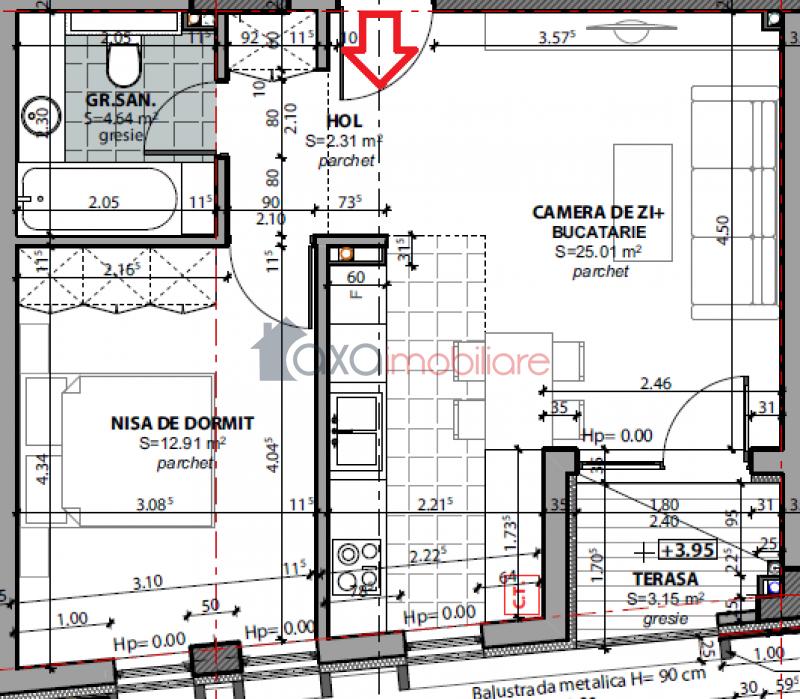
Apartamentul are suprafata utila de 48 mp si este pozitionat la etaj intermediar, intr-un imobil nou ce dispune de regim de inaltime S+P+6E.
Compartimentarea este semidecomandata; imobilul fiind compus dintr-un living cu 1 bucatarie de tip open space, 1 hol, 1 baie, 1 dormitor si 1 terasa.
Apartamentul are in dotare centrala termica, geamuri termopan cu tamplarie din PVC si usa metalica la intrare.
Se vinde la stadiul de semifinisat cu sapa autonivelanta si peretii gletuiti.
Imobilul va fi finalizat in Aprilie-Mai 2016.
Opinia agentului
''Apartament semifinisat, ce dispune de terasa, potrivit pentru un cuplu care doreste sa isi finiseze locuinta dupa bunul plac.''



