Apartament 2 camere de vanzare in Cluj-Napoca, Gheorgheni ID 2930
Pret:
68 310 EURO +TVA
Pret/mp:
1 150 EURO/m2
Nr. camere:
2
Etaj:
Intermediar/10
Bloc Nou:
da
Anul constructiei:
2015
Finalizat:
nu
Data finalizarii:
Decembrie 2015
Confort:
1
Suprafata utila:
59.4 m2
Balcoane:
1 LOGIE
Localitate:
Cluj-Napoca
Cartier:
Gheorgheni
Zona:
Iulius Mall
Adaugat in data:
16-10-2015
Actualizat in data:
15-10-2020
Vizite oferta:
13097
Dotari imobil
Bucatarie:
1
Bai:
1
Parcare:
nu
Beci:
nu
Decomandari:
Decomandat
Finisaje:
Semifinisat
Mobilat:
nu
Utilat:
nu
Constructie:
Caramida
Geamuri termopan
Usa antiefractie
Centrala termica
Contoare gaz
CF
Descriere imobil
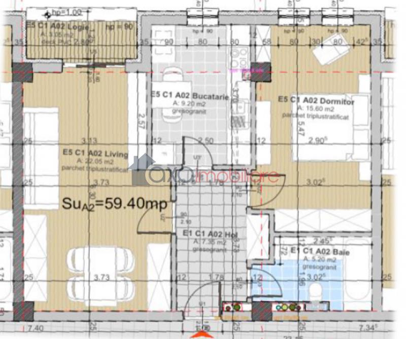
Oferim spre vanzare apartament cu 2 camere, semifinisat, situat in cartierul Gheorgheni, intr-o locatie ce ofera diverse facilitati in imediata apropiere precum universitati, statia de autobuz si Iulius Mall.
Apartamentul are o suprafata utila de 59.40 mp si este decomandat astfel: 1 living, 1 dormitor, 1 bucatarie, 1 baie, 1 hol si 1 logie.
Dispune de centrala termica, calorifere, usa metalica si geamuri termopan cu trei sticle, cu tamplarie Rehau.
Se vinde la stadiul de semifinisat cu sapa autonivelanta si peretii gletuiti in doua straturi.
Contra sumei de 5500 euro se poate achizitiona si parcare subterana.
Folositi formularul de mai jos pentru a ne contacta
Persoana de contact: Secretariat
Telefon: 0742/130130
0264/333147
Fax: + 40 264 333 147
Email: office@axaimobiliare.com
Adresa: Cluj-Napoca, Str. Memorandumului, nr. 19



