Apartament 2 camere de vanzare in Cluj-Napoca, Buna Ziua ID 3876
Dotari imobil
Descriere imobil
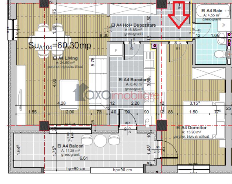
Propunem spre vanzare apartament cu 2 camere, semifinisat, ce dispune de o suprafata utila generoasa de 60.30 mp si de compartimentare decomandata, situat in Cluj-Napoca, in cartierul Buna Ziua, in zona Calea Turzii.
Apartamentul face parte dintr-o constructie noua dispusa pe regim de inaltime S+P+4E.
Pozitionarea apartamentului: etaj intermediar (etajul 1) / S+P+4E.
Imobilul este compus dintr-un living, 1 hol cu spatiu pentru depozitare, 1 dormitor, 1 bucatarie, 1 baie si 1 balcon.
Se vinde la stadiul de semifinisat:
- sapa autonivelanta si peretii gletuiti.
- geamuri termopan.
- usa antiefractie.
- centrala termica, calorifere.
Contra sumei de 5000 euro se poate achizitiona garaj.
Opinia agentului
"Compartimentare bine gandita, suprafata utila generoasa - oferta potrivita pentru un cuplu care pune accent pe confort."



