Apartament 2 camere de vanzare in Cluj-Napoca, Andrei Muresanu ID 4065
Dotari imobil
Descriere imobil
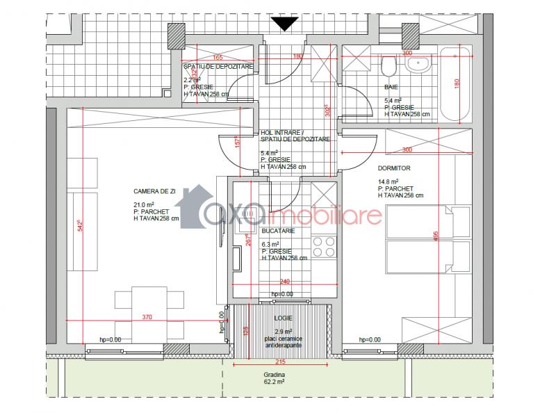
Propunem spre vanzare apartament cu 2 camere, cu suprafata utila de 53.3 mp, situat in Cluj-Napoca, in cartierul Andrei Muresanu, zona Sigma.
Apartamentul este pozitionat la parterul unui imobil nou, dispus pe regim de inaltime D+P+3E+ER, cu termen de finalizare Octombrie 2017.
Compartimentarea este decomandata: 1 hol, 1 spatiu pentru depozitare, 1 bucatarie, 1 logie, 1 dormitor si 1 baie.
Se vinde la stadiul de semifinisat cu:
* sapa autonivelanta, peretii gletuiti.
* centrala termica, calorifere, geamuri termopan, usa antiefractie.
Contra cost se poate achizitiona loc de parcare subterana (6000 euro).
Imobilul dispune de gradina.
Opinia agentului
Oferta potrivita pentru cei care pun accent pe compartimentare si locatie. Apartament ce dispune de gradina, situat in zona Sigma.



