Apartament 1 camere de vanzare in Cluj-Napoca, Gheorgheni ID 5286
Dotari imobil
Beton
Descriere imobil
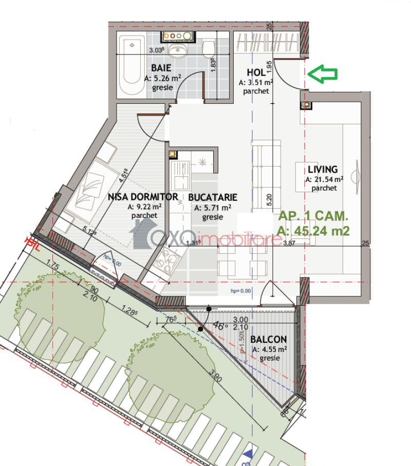
Oferim spre vanzare apartament cu 1 camera, semifinisat, cu o suprafata de utila de 45.24 mp, situat in Cluj-Napoca.
Localizare: cartierul Gheorgheni, zona strazii C-tin Brancusi.
Detalii despre locatie: locatie linistita, verde, nou-dezvoltata, in apropiere de cartierele Borhanci, Buna Ziua, Andrei Muresanu, Centru (Piata Cipariu).
Pozitionare: parter / 2S+P+3E, intr-un bloc nou.
Compartimentare: 1 living (21.54 mp), 1 bucatarie (5.71 mp), 1 nisa de dormit (9.22 mp), 1 baie (5.26 mp), 1 hol (3.51 mp) + 1 balcon (4.55 mp).
Dotari: centrala termica, calorifere, geamuri termopan, usa antiefractie.
Se vinde la stadiul de semifinisat; imobilul dispune de toate utilitatile trase la pozitie (apa, electricitate, gaz, canalizare).
Pretul unui loc de parcare este de 8.000 Euro.
Opinia agentului
" Avantajele ofertei: constructie noua, compartimentare moderna, locatie linistita la 5 minute de Piata Cipariu. "



