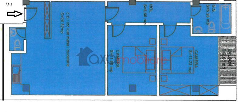
Apartment 3 rooms for sell in Cluj-napoca, Centru ID 2148
Price:
78 000 EURO negotiable
Price / sm:
1 150 EURO/m2
No. of rooms:
3
Floor:
Intermediate/3
New building:
yes
Finalized building:
no
Finalized date:
2014
Comfort:
1
Build area:
68 m2
Balconies:
1
City:
Cluj-Napoca
Ward:
Centru
Zone:
P-ta Mihai Viteazu
Street:
P-ta M. Viteazu
Add date:
12-11-2013
Update date:
21-11-2016
Views number:
16030
Characteristic details
Kitchen:
1
Bathrooms:
2
Parking:
yes
Cellar:
no
Divided:
Divided
Finishing:
Semi finishing
With furniture:
no
Fit out:
no
Frostedglass windows
Metal door
Heat station
Gas counter
CF
You can conctact us using the form below.
Contact person: Cimpian Alexandru
Phone: 0744/558995
Fax: + 40 264 333 147
Email: sandu@axaimobiliare.com
Address: Cluj-Napoca, Str. Memorandumului, nr. 19



