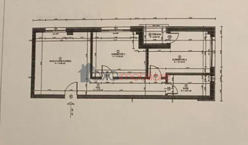
Apartment 3 rooms for sell in Cluj-napoca, Borhanci ID 6016
Price:
125 000 EURO negotiable
Price / sm:
2 155 EURO/m2
No. of rooms:
3
Floor:
2/3
New building:
yes
Build year:
2017
Finalized building:
yes
Finalized date:
2017
Build area:
58 m2
Balconies:
1 Logie
City:
Cluj-Napoca
Ward:
Borhanci
Zone:
Brancusi
Street:
Romul Ladea
Add date:
11-02-2021
Update date:
18-05-2023
Views number:
8531
Characteristic details
Kitchen:
1
Bathrooms:
1
Parking:
yes-Inclusa in pret
Cellar:
no
Finishing:
Modern finishing
With furniture:
no
Fit out:
no
Build:
Bricks
Concrete
Concrete
Parquet
Sand stone
Faience
Frostedglass windows
Washable walls
Metal door
Interior doors
TV cable
Internet connection
Heat station
Gas counter
CF
You can conctact us using the form below.
Contact person: Ciuca Aurica
Phone: 0752/283205
Fax: + 40 264 333 147
Email: aurica@axaimobiliare.com
Address: Cluj-Napoca, Str. Memorandumului, nr. 19



