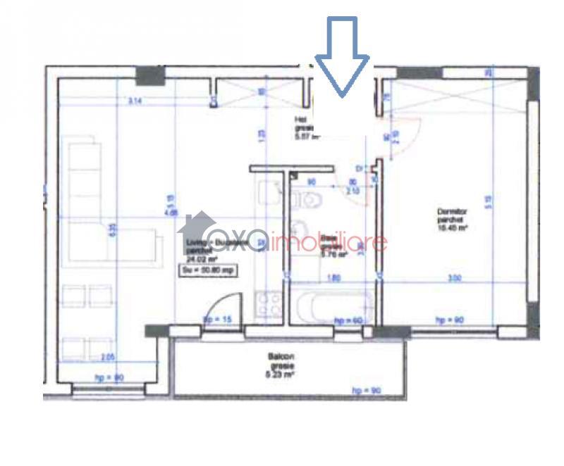
Apartment 2 rooms for sell in Floresti ID 6116
Price:
57 000 EURO negotiable
Price / sm:
1 122 EURO/m2
No. of rooms:
2
Floor:
1/3
New building:
yes
Build year:
2021
Finalized building:
yes
Finalized date:
2021
Comfort:
1
Build area:
50.8 m2
Balconies:
1 (5.23 mp)
City:
Floresti
Street:
Sub Cetate
Add date:
07-04-2021
Update date:
17-07-2025
Views number:
8061
Characteristic details
Kitchen:
1
Bathrooms:
1
Parking:
yes-Contra cost
Cellar:
no
Finishing:
Semi finishing
With furniture:
no
Fit out:
no
Build:
Bricks
Concrete
Concrete
Frostedglass windows
Metal door
Heat station
Gas counter
CF
You can conctact us using the form below.
Contact person: Secretariat
Phone: 0742/130130
0264/333147
Fax: + 40 264 333 147
Email: office@axaimobiliare.com
Address: Cluj-Napoca, Str. Memorandumului, nr. 19



