Apartment 2 rooms for sell in Floresti ID 5973
Price:
45 600 EURO
Price / sm:
961 EURO/m2
No. of rooms:
2
Floor:
Intermediate/3
New building:
yes
Build year:
2020
Finalized building:
no
Finalized date:
Octombrie 2021
Comfort:
1
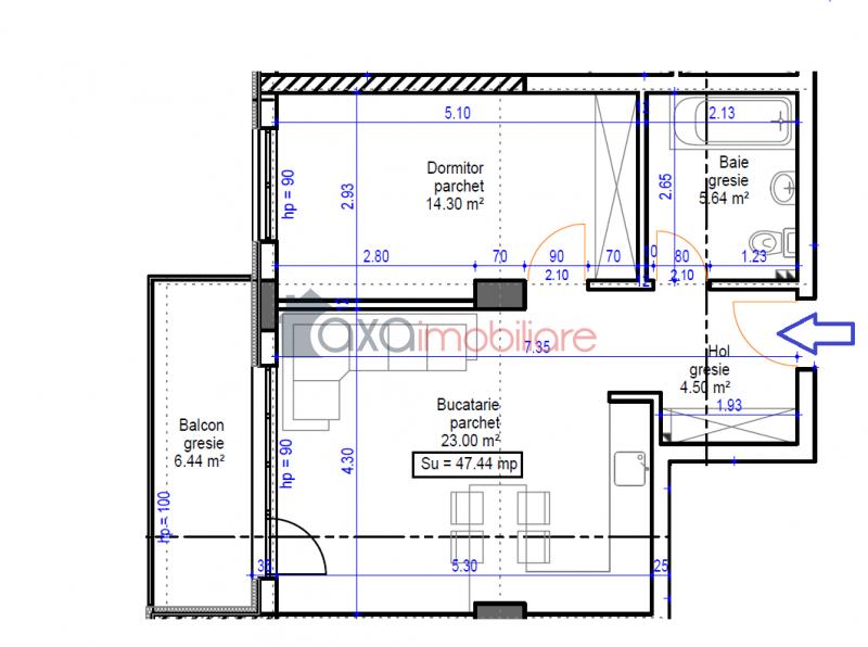
Build area:
47.44 m2
Balconies:
1 (6.44 mp)
City:
Floresti
Add date:
15-01-2021
Update date:
09-05-2025
Views number:
7617
Characteristic details
Kitchen:
1
Bathrooms:
1
Parking:
yes-Contra cost
Cellar:
no
Divided:
Semi divided
Finishing:
Semi finishing
With furniture:
no
Fit out:
no
Build:
Bricks
Concrete
Concrete
Frostedglass windows
Metal door
Heat station
Gas counter
You can conctact us using the form below.
Contact person: Secretariat
Phone: 0742/130130
0264/333147
Fax: + 40 264 333 147
Email: office@axaimobiliare.com
Address: Cluj-Napoca, Str. Memorandumului, nr. 19



