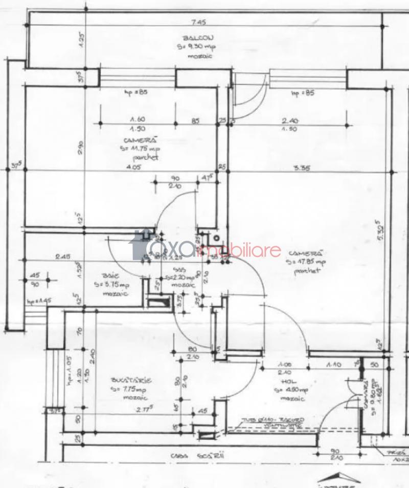
Apartment 2 rooms for sell in Cluj-napoca, Gheorgheni ID 5335
Price:
95 000 EURO negotiable
No. of rooms:
2
Floor:
3/4
New building:
no
Build year:
Before 1990
Finalized building:
yes
Comfort:
Marit
Build area:
58 m2
Balconies:
1 Deschis
City:
Cluj-Napoca
Ward:
Gheorgheni
Zone:
Iulius Mall
Add date:
24-07-2019
Update date:
22-06-2022
Views number:
12390
Characteristic details
Kitchen:
1
Bathrooms:
1
Parking:
no
Cellar:
no
Finishing:
With finishing
With furniture:
no
Fit out:
no
Build:
Bricks
Concrete
Concrete
Parquet
Sand stone
Faience
Frostedglass windows
Washable walls
Metal door
Interior doors
TV cable
Internet connection
Heat station
Gas counter
CF
You can conctact us using the form below.
Contact person: Ciuca Aurica
Phone: 0752/283205
Fax: + 40 264 333 147
Email: aurica@axaimobiliare.com
Address: Cluj-Napoca, Str. Memorandumului, nr. 19



