Apartment 2 rooms for sell in Cluj-napoca, Gheorgheni ID 4610
Price:
77 600 EURO
Price / sm:
1 350 EURO/m2
No. of rooms:
2
Floor:
1/9
New building:
yes
Finalized building:
no
Finalized date:
Iunie 2018
Comfort:
Marit
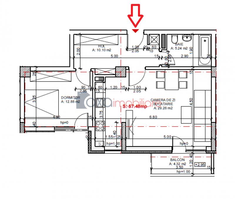
Build area:
57.48 m2
Balconies:
1 Deschis (4.32 mp)
City:
Cluj-Napoca
Ward:
Gheorgheni
Zone:
Iulius Mall
Add date:
04-05-2018
Update date:
05-08-2020
Views number:
11333
Characteristic details
Kitchen:
1
Bathrooms:
1
Garage:
1 Contra cost
Parking:
no
Cellar:
no
Divided:
Divided
Finishing:
Semi finishing
With furniture:
no
Fit out:
no
Build:
Bricks
Concrete
Concrete
Frostedglass windows
Metal door
TV cable
Internet connection
Heat station
Gas counter
You can conctact us using the form below.
Contact person: Secretariat
Phone: 0742/130130
0264/333147
Fax: + 40 264 333 147
Email: office@axaimobiliare.com
Address: Cluj-Napoca, Str. Memorandumului, nr. 19



