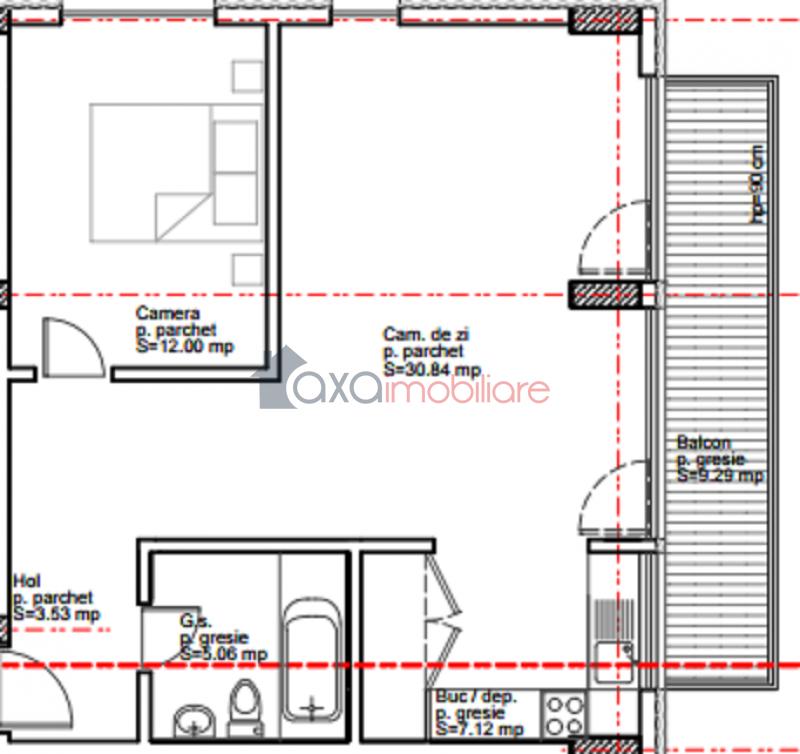
Apartment 2 rooms for sell in Cluj-napoca, Gheorgheni ID 2518
Price:
63 000 EURO negotiable
Price / sm:
1 068 EURO/m2
No. of rooms:
2
Floor:
Ground floor/3
New building:
yes
Build year:
2015
Finalized building:
no
Finalized date:
Decembrie-Ianuarie 2016
Build area:
59 m2
Balconies:
1
City:
Cluj-Napoca
Ward:
Gheorgheni
Street:
Romul Ladea
Add date:
21-07-2015
Update date:
12-08-2025
Views number:
13215
Characteristic details
Kitchen:
1
Bathrooms:
1
Parking:
yes
Cellar:
no
Divided:
Semi divided
Finishing:
Semi finishing
With furniture:
no
Fit out:
no
Build:
Bricks
Concrete
Concrete
Frostedglass windows
Metal door
Heat station
Gas counter
CF
You can conctact us using the form below.
Contact person: Ciuca Aurica
Phone: 0752/283205
Fax: + 40 264 333 147
Email: aurica@axaimobiliare.com
Address: Cluj-Napoca, Str. Memorandumului, nr. 19



