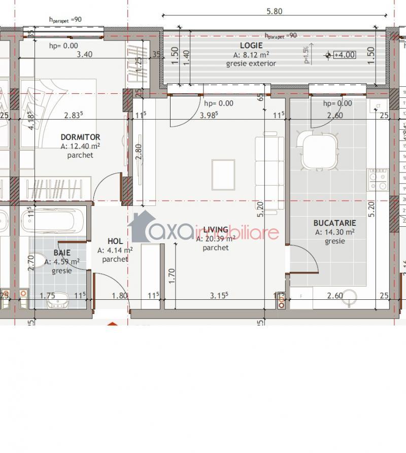
Apartment 2 rooms for sell in Cluj-napoca, Centru ID 2430
Price:
63 750 EURO negotiable
No. of rooms:
2
Floor:
1/6
New building:
yes
Finalized building:
yes
Comfort:
1
Build area:
51 m2
Balconies:
1
City:
Cluj-Napoca
Ward:
Centru
Zone:
Gradini Manastur
Street:
Calea Manastur
Add date:
28-04-2015
Update date:
22-06-2022
Views number:
18333
Characteristic details
Kitchen:
1
Bathrooms:
1
Parking:
no
Cellar:
no
Divided:
Divided
Finishing:
Semi finishing
With furniture:
no
Fit out:
no
Build:
Bricks
Frostedglass windows
Metal door
Heat station
Gas counter
You can conctact us using the form below.
Contact person: Ciuca Aurica
Phone: 0752/283205
Fax: + 40 264 333 147
Email: aurica@axaimobiliare.com
Address: Cluj-Napoca, Str. Memorandumului, nr. 19



