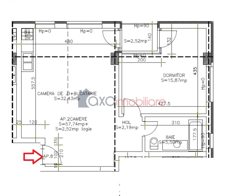
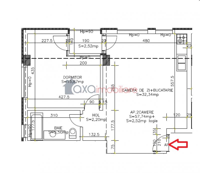
Apartment 2 rooms for sell in Cluj-napoca, Calea Turzii ID 4401
Price:
69 300 EURO
Price / sm:
1 200 EURO/m2
No. of rooms:
2
Floor:
1/5
New building:
yes
Build year:
2017
Finalized building:
no
Finalized date:
August 2018
Comfort:
Marit
Build area:
57.74 m2
Balconies:
1 LOGIE
City:
Cluj-Napoca
Ward:
Calea Turzii
Zone:
Calea Turzii
Add date:
13-11-2017
Update date:
09-10-2023
Views number:
11915
Characteristic details
Kitchen:
1
Bathrooms:
1
Parking:
yes-Contra cost
Cellar:
no
Divided:
Semi divided
Finishing:
Semi finishing
With furniture:
no
Fit out:
no
Build:
Bricks
Concrete
Concrete
Frostedglass windows
Metal door
Heat station
Gas counter
You can conctact us using the form below.
Contact person: Ciuca Aurica
Phone: 0752/283205
Fax: + 40 264 333 147
Email: aurica@axaimobiliare.com
Address: Cluj-Napoca, Str. Memorandumului, nr. 19



