Apartment 2 rooms for sell in Cluj-napoca, Borhanci ID 4528
Price:
71 900 EURO +VAT
No. of rooms:
2
Floor:
1/3
New building:
yes
Build year:
2017
Finalized building:
no
Finalized date:
Iunie-August 2018
Comfort:
Marit
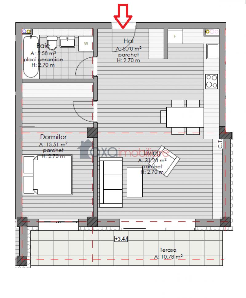
Build area:
58.08 m2
Balconies:
1 Terasa 10.78 mp
City:
Cluj-Napoca
Ward:
Borhanci
Add date:
28-02-2018
Update date:
28-09-2020
Views number:
11988
Characteristic details
Kitchen:
1
Bathrooms:
1
Parking:
yes-Contra cost
Cellar:
no
Divided:
Divided
Finishing:
Semi finishing
With furniture:
no
Fit out:
no
Build:
Bricks
Concrete
Concrete
Frostedglass windows
Metal door
TV cable
Internet connection
Heat station
Gas counter
You can conctact us using the form below.
Contact person: Ciuca Aurica
Phone: 0752/283205
Fax: + 40 264 333 147
Email: aurica@axaimobiliare.com
Address: Cluj-Napoca, Str. Memorandumului, nr. 19



