Apartament 2 camere de inchiriat in Cluj-Napoca, Iris ID 6422
Dotari imobil
Beton
Descriere imobil
Oferim spre inchiriere apartament cu 2 camere, finisat, mobilat si utilat (la cerere / la inchiriere), situat in Cluj-Napoca, in cartierul Iris, in zona strazii Oasului; intr-o locatie cu acces imediat spre linia de tramvai, statia de autobuz, magazine, Centrul comercial Auchan, zona garii etc.
Acces usor spre Dambul Rotund, zona garii.
Pozitionare
Etaj retras / P+2E+ER; intr-un imobil mixt, constructie noua, finalizata; cu o priveliste frumoasa asupra zonei.
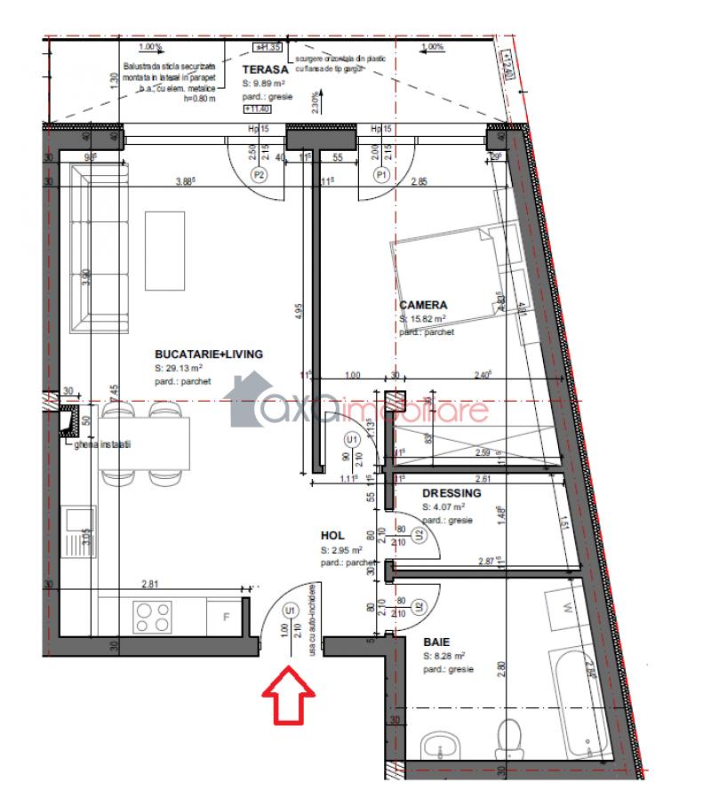
Suprafata utila este de 60.25 mp + 1 terasa de aprox. 10 mp.
Compartimentare
1 living cu 1 bucatarie de tip open space
1 dormitor
1 dressing
1 hol
1 baie
1 terasa (acces atat din living, cat si din dormitor).
Dotari
Centrala termica, geamuri termopan, usa antiefractie, usi interioare.
Finisaje
Parchet, gresie, faianta, vopsea lavabila.
Dispune de toate dotarile si utilitatile.
Pretul include 1 loc de parcare (exterior).
Se mobileaza si utileaza in momentul inchirierii si / sau la cerere.
Opinia agentului
" Apartament luminos, pozitionat la etaj retras, oferind intimitate si priveliste frumoasa asupra zonei. Se va preda mobilat si utilat (totul nou), cu loc de parcare inclus in pret. Locatie cu acces imediat spre linia de tramvai, statia de autobuz, dar si spre Centrul comercial Real / Auchan. "



